Ceramic Lined Bend With Flange

ASTM A234 WP11 吹扫

ASME SA 234 wp11 在众多不同尺寸的管道之间形成重要的连接。

下载 PDF 进入淘宝
ASME SA335 P91弯头

ASME SA335 P91弯头

ASTM A234 WP11 吹扫

ASTM A234 WP11 吹扫

ASTM A234 WP22 弯头

ASTM A234 WP22 弯头

ASTM A420 WPL6弯头

ASTM A420 WPL6弯头

ASTM A234 WP11 接头可以毫不费力地弯曲和焊接。ASME SA 234 wp11 在众多不同尺寸的管道之间形成重要的连接。ANSI B16.9 弯头 A234 WP11 是该牌号的自由加工版本,可采用棒状,用于自动螺丝机。

化学成分

ASTM A234 WP11 是指用于高温应用的合金钢管件牌号。WP11(1 级)的化学成分通常包括以下元素:

元素组成(%)
碳 (C)0.05 - 0.15
锰 (Mn)0.30 - 0.60
磷 (P)≤ 0.03
硫 (S)≤ 0.03
硅 (Si)0.50 - 1.00
铬 (Cr)1.00 - 1.50
钼 (Mo)0.44 - 0.65

机械性能

ASTM A234 WP11 管件还满足其在高温环境中预期用途的特定机械性能要求:

财产价值
抗拉强度 (MPa)≥ 415
屈服强度 (MPa)≥ 205
伸长率 (%)20 - 30
硬度(布氏、HB)≤ 197

A234 WP11的PMI测试报告

铁%Cr%莫%百万%公司%V%按 %成绩
97.841.110.490.340.110.060.0061.25Cr-0.5Mo (0.00)、C-0.5Mo (0.27)
97.811.130.480.370.090.080.051.25Cr-0.5Mo (0.00)、C-0.5Mo (0.25)
97.871.070.500.420.0060.14-1.25Cr-0.5Mo (0.00)、C-0.5Mo (0.14)
97.711.140.520.410.160.0060.0071.25Cr-0.5Mo (0.00)、C-0.5Mo (0.20)
97.781.100.490.370.140.080.0051.25Cr-0.5Mo (0.00)、C-0.5Mo (0.23)
97.751.110.510.380.0040.140.0061.25Cr-0.5Mo (0.00)、C-0.5Mo (0.22)
97.721.110.500.400.170.060.041.25Cr-0.5Mo (0.00)、C-0.5Mo (0.20)
97.771.100.500.340.180.060.051.25Cr-0.5Mo (0.00)、C-0.5Mo (0.27)
97.851.060.510.410.140.020.1301.25Cr-0.5Mo (0.00)、C-0.5Mo (0.15)
97.871.080.520.360.0050.140.0051.25Cr-0.5Mo (0.00)、C-0.5Mo (0.23)
97.611.200.490.460.0140.140.091.25Cr-0.5Mo (0.00)、C-0.5Mo (0.23)
97.591.200.480.440.100.040.1491.25Cr-0.5Mo (0.00)、C-0.5Mo (0.24)
97.701.170.490.400.200.040.1571.25Cr-0.5Mo (0.00)、C-0.5Mo (0.25)
97.661.200.520.450.0050.040.1491.25Cr-0.5Mo (0.00)、C-0.5Mo (0.24)
97.601.300.490.0100.420.0040.111.25Cr-0.5MB (0.00), P20 (0.33)
97.701.230.490.400.140.0050.041.25Cr-0.5Mo (0.00)、C-0.5Mo (0.29)
97.691.130.530.450.19-0.1571.25Cr-0.5Mo (0.00)、C-0.5Mo (0.17)

钢弯头材料规格

材料钢管弯头配件
碳钢A106 大 AA234 克 WPA
A106 B级A234 克 WPB
A106 大 CA234 克木塑
碳钢,合金,高温A335 Gr P1A234 Gr WP1
A335 Gr P11A234 Gr WP11
A335 Gr P12A234 Gr WP12
A335 Gr P22A234 格 WP22
A335 Gr P5A234 克 WP5
A335 Gr P9A234 大 WP9
碳钢合金低温A333 6级A420 Gr WPL6
A333 3级A420 大 WPL3

ASTM/ ASME A234 WPB / A860 – MSS-SP-75 WPHY 42 / 46 / 52 / 56 / 60 / 65 / 70弯头

低温钢:A420 WPL3 / A420 WPL6弯头

尺寸范围:1/2 至 56 英寸(DN 15 至 DN 1,400 毫米)、22.5 度、45 度、90 度、180 度

品种分类

碳钢弯头首先分为其曲率半径,可分为长半径弯头和短半径弯头。长半径弯头是指其曲率半径等于管外径的1.5倍,即R=1.5D。短半径弯头意味着其曲率半径等于管子的外径,即 R = 1.0D。(D是弯头的直径,R是曲率半径。D 也可以用折叠来表示。如果根据压力等级有 17 个级别,则与美国管中的标准相同:Sch5s、Sch10s、Sch10、Sch20、Sch30、Sch40s、STD、Sch40、Sch60、Sch80s、XS;Sch80、Sch100、Sch120、Sch140、Sch160、XXS,最常用的是STD和XS。根据弯头的角度,有45°弯头、90°弯头和180°弯头。

曲率半径是多少?

曲率半径是曲线的曲率。平面曲线的曲率定义为曲线上一点的切角与圆弧长度的旋转速率。它由微分定义,它显示曲线偏离直线的程度。曲率的倒数是曲率半径。曲率半径主要用于描述曲线上点的曲率变化程度。

大半径弯头的技术要求

要求曲率半径应控制。例如,如果半径为 1.5D,则曲率半径必须在所需的公差范围内。因为这些管件大多用于焊接,为了提高焊接质量,将端部变成坡口,并保持一定的角度和边缘。这个要求相当严格,边缘的厚度、角度以及偏差范围都被定义了。对大半径弯头的物理尺寸的要求比对管件的要求要多。弯头的表面质量和机械性能与管道几乎相同。为便于焊接,大半径弯头应采用与待连接管道同类材料制成。

ASTM/ ASME A234 WPB / A860 – MSS-SP-75 WPHY 42 / 46 / 52 / 56 / 60 / 65 / 70弯头

低温钢:A420 WPL3 / A420 WPL6弯头

尺寸范围:1/2 至 56 英寸(DN 15 至 DN 1,400 毫米)、22.5 度、45 度、90 度、180 度

品种分类

碳钢弯头首先分为其曲率半径,可分为长半径弯头和短半径弯头。长半径弯头是指其曲率半径等于管外径的1.5倍,即R=1.5D。短半径弯头意味着其曲率半径等于管子的外径,即 R = 1.0D。(D是弯头的直径,R是曲率半径。D 也可以用折叠来表示。如果根据压力等级有 17 个级别,则与美国管中的标准相同:Sch5s、Sch10s、Sch10、Sch20、Sch30、Sch40s、STD、Sch40、Sch60、Sch80s、XS;Sch80、Sch100、Sch120、Sch140、Sch160、XXS,最常用的是STD和XS。根据弯头的角度,有45°弯头、90°弯头和180°弯头。

曲率半径是多少?

曲率半径是曲线的曲率。平面曲线的曲率定义为曲线上一点的切角与圆弧长度的旋转速率。它由微分定义,它显示曲线偏离直线的程度。曲率的倒数是曲率半径。曲率半径主要用于描述曲线上点的曲率变化程度。

大半径弯头的技术要求

要求曲率半径应控制。例如,如果半径为 1.5D,则曲率半径必须在所需的公差范围内。因为这些管件大多用于焊接,为了提高焊接质量,将端部变成坡口,并保持一定的角度和边缘。这个要求相当严格,边缘的厚度、角度以及偏差范围都被定义了。对大半径弯头的物理尺寸的要求比对管件的要求要多。弯头的表面质量和机械性能与管道几乎相同。为便于焊接,大半径弯头应采用与待连接管道同类材料制成。

什么是 A234 WP11 配件?

A234 WP11 管件可以有效地弯曲和焊接。ASME SA 234 wp11 在不同尺寸的不同管道之间形成了重要的关联。弯头 A234 WP11 是该牌号的自由加工改编版,可采用棒材形状,用于自动螺丝机。

  • W = 可焊接/锻造
  • P = 与合金材料的 P 数相关
  • B = 参考材料的最小产量
什么是 A234 WP11 配件

ASTM A234/A234M 是中高温使用锻造碳钢和合金钢管件的标准规范。本规范涵盖了用于石油和天然气、石化和发电行业各种应用的多个等级的配件。

ASTM A234/A234M 的化学成分 (%)

年级类型C是的SP其他欧布D5
WPB的0.30.1分钟0.0580.050.29-1.060.40.40.15V:0.06;酒精:0.02415-58524022197
木塑0.350.1分钟0.0580.050.29-1.060.40.40.15V:0.06;酒精:0.02485-65527522197
WP10.280.1-0.50.0450.0450.3-0.9

0.44-0.65
380-55020522197
WP12 CL10.05-0.20.60.0450.0450.3-0.80.8-1.25
0.44-0.65
415-58522022197
WP12 CL20.05-0.20.60.0450.0450.3-0.80.8-1.25
0.44-0.65
485-65527522197
WP11 CL10.05-0.150.5-10.030.030.3-0.61-1.5
0.44-0.65
415-58520522197
WP11 CL20.05-0.20.5-10.040.040.3-0.81-1.5
0.44-0.65
485-65527522197
WP11 CL30.05-0.20.5-10.040.040.3-0.81-1.5
0.44-0.65
520-69031022197
WP22 CL10.05-0.150.50.040.040.3-0.61.9-2.6
0.87-1.13
415-58520522197
WP22 CL30.05-0.150.50.040.040.3-0.61.9-2.6
0.87-1.13
520-69031022197
WP5 CL10.150.50.030.040.3-0.64-6
0.44-0.65
415-58520522217
WP5 CL30.150.50.030.040.3-0.64-6
0.44-0.65
520-69031022217
WP9 CL10.1510.030.030.3-0.68-10
0.9-1.1
415-58520522217
WP9 CL30.1510.030.030.3-0.68-10
0.9-1.1
520-69031022217
WPR的0.2
0.050.0450.4-1.06
1.6-2.24

435-60531522/28217
WP91型0.08-0.120.2-0.50.010.020.3-0.68-9.50.40.85-1.05参见 sdandard585-76041520248
WP911型0.09-0.130.1-0.50.010.020.3-0.68.5-10.50.40.9-1.1参见 sdandard620-84044020248

笔记:

每比规定的 C 最大值减少 0.01%,则允许比规定的最大值增加 0.06% Mn,最高可达 1.35%。

Cu、Ni、Cr、Mo之和不得超过1.00%。

Cr和Mo的总和不得超过0.32%。

根据热分析和公式 C.E.=C+Mn/6+(Cr+Mo+V)/5+(Ni+Cu)/15,最大碳当量 (C.E.) 应为 0.50。

ASTM A234 的机械性能

拉伸要求WPB的木塑、WP11CL2WP11CL1WP11CL3
拉伸强度,最小值,ksi[MPa]
(0.2% 偏移或 0.5% 负载下拉伸)
60-85
[415-585]
70-95
[485-655]
60-85
[415-585]
75-100
[520-690]
屈服强度,最小,ksi[MPa]32
[240]
40
[275]
30
[205]
45
[310]

什么是弯头管?

钢管弯头(有时也称为弯头)是压力管道系统中用于改变流体流动方向的关键部件。它用于连接两根公称直径相同或不同的管道,使管道和流体方向转向 45 度或 90 度的某个方向。

钢管弯头的分类

钢管弯头可以通过以下各种参数进行分类,

  • 方向角度(Direction Angle)
  • 长度和半径
  • 与管道连接
  • 结构材料

基于方向角度的弯头类型

根据管道的流体流动方向,弯头可分为不同的度数,如45度、90度、180度,是最常见的弯头。一些特殊管道也有 60 度和 120 度弯头。这个度数只是流体流经所述弯头后将要变化的角度的表示。


什么是 5D 弯头?

焊接弯头 5D(半径二又半直径)用于转移管道的流动。5D 焊接弯头可用于运输颗粒材料和粉末。在法国,这种弯头也被称为 coude grand 人造丝。

5D 弯头数据

基于长度和半径的弯头类型

弯头分为两组,定义了流动流体改变方向的距离;一端到另一面的中心线。这称为“中心到面”距离,相当于弯头弯曲的半径。

如果半径与管道直径相同(中心到面尺寸为 1.0 X 直径),则称为短半径弯头(SR 弯头),通常用于低压和低速管道或间隙是主要问题的狭窄区域。如果半径大于管道直径(中心到面尺寸为 1.5 X 直径),则我们称其为用于高压和高流量管道的长半径弯头 (LR 弯头)。

弯头分为其曲率半径,可分为长半径弯头和短半径弯头。长半径弯头是指曲率半径等于1.5倍的管子的外径,即R=1.5D。短半径弯头意味着其曲率半径等于管子的外径,即 R = D。其中 D 是弯头的直径,R 是曲率半径。正常使用半径长度有时为了减少阻力损失或弯头磨损,会使用弯曲半径较大的弯头(其实不叫弯头);当安装位置有限制时,将使用短半径弯头。

管弯头最终

长半径弯头 VS 短半径弯头


什么时候选择长半径弯头还是短半径弯头?

工艺安装的管材尺寸有两种,即管材外径和公称尺寸。D、DN,是指管道的公称尺寸。它不代表管道的内径或管道的外径。它是设计和使用的标称尺寸。弯头为弯头,制造方法分为推弯头、挤压弯头和焊接斜接弯头。结构长度为1.0D、1.5D、2.0D。

目前,我国在这方面实施的规范有公制和英制两种。例如:1.5D钢无缝弯头,DN100外径¢108和¢114.3,实际结构长度L152,DN200外径¢219和¢216.3,实际结构长度L302。在使用中,长半径弯头(R=15DN):一般情况下,应优先选择;短半径弯头 (R = 1.0DN):主要用于尺寸有限的应用。其高工作压力不应超过同规格长半径弯头的0.8倍。

弯头(R=nDN):用于调节介质在弯曲处的冲刷和动能,可用于R=3DN、6DN、10DN、20DN。根据制造方法的不同,分为推弯头、挤压弯头和焊接斜接弯头。

推弯和挤压弯头:常用于介质条件严格的中小型管道上的斜接弯头焊接:常用于介质条件适中的大尺寸管道,弯曲半径不小于其公称直径。1.5倍。当斜接弯头斜接角大于450时,不宜用于剧毒、易燃介质管道,或因温度变化而承受机械振动、压力脉动和交变载荷的管道上。

那么我们如何购买合格的弯头呢?检测弯头的后弧度:无缝的弯头检测后弧度的厚度是一项重要的任务。许多大型管弯头厂家或对后弧进行严格的工程检验是必须的。关系到管道运行的安全性和稳定性。

大家都知道,无缝钢管和无缝弯头都是受压的,也就是运行时压力很大。一般情况下,设计安装的无缝弯头厚度的安全系数约为六倍。比如219*8的无缝弯头,管道介质是普通水,温度通常不高于一百摄氏度,而爆破这样的无缝弯头所需的压力在300公斤左右,也就是说,管道内部的压力需要达到PN30,无缝弯头就会被爆破, 而这个肘部的作压力大概也差不多了。估计最高不会超过PN6.4,当然一般在PN4.0左右。随着管道的腐蚀,无缝弯头也会受到不同程度的腐蚀。为了保证其安全运行,大修的必要性也很大。

目前制作无缝弯头的工艺会导致后弧变薄的现象。一般情况下,嘴的壁厚会比后弧薄两毫米左右。即使后弧变薄,常见的厚度和压力也不会变薄。会有太多的安全隐患,因为直到肘部发生危险事故才更换肘部。但作为一个严谨的工程,有什么不一样的,管道内部的介质也负责,不仅仅是水。可能有油污或其他杂质,温度高,压力大,后弧的厚度作为薄弱点决定了无缝弯头的寿命。因此,检测后弧的重要性自然很大。使用测厚仪,直接读取弯头处一个点的厚度。


短半径 (SR) 或长半径 (LR) 是什么意思?

您经常会听到 SR45 弯头或 LR45 弯头。45或90是指对焊管件改变流动方向的弯曲角度。长半径弯头(LR 90 弯头或 LR 45 弯头)的弯管将是管道尺寸的 1.5 倍。因此,6 英寸 LR 90 的弯曲半径为 1.5 x 标称管道尺寸。短半径弯头(SR45 或 SR90)的弯管与管件尺寸相等,因此 6 英寸 SR 45 的弯曲半径为 6 英寸标称管道尺寸。


什么是 3R 或 3D 弯头管件?

首先,术语 3R 或 3D 是同义词。3R 对焊弯头的弯曲半径是标称管道尺寸的 3 倍。3R 弯头比 SR 或 LR 接头更光滑。


基于与管道连接的弯头类型

根据与管道的连接,弯头可分为对焊弯头承插焊弯头螺纹弯头

对焊弯头

对焊弯头是通过热压或锻造形成的钢弯头。其连接形式是直接焊接弯头和钢管。对焊弯头具有斜角端部,便于焊接。在大多数情况下,这种坡口允许全熔焊。对焊弯头主要用于压力和温度较高的弯头。


承插焊弯头<

承插焊弯头也焊接到管道和管件端部。与对焊弯头不同,承插焊弯头的末端有一个梯形区域。我们可以将管端插入该区域(SW弯头的直径与管道的外径相匹配),然后进行焊接工作将它们连接在一起。因此,SW弯头端部的实际直径大于弯头直径。


螺纹弯头

螺纹弯头的形状与SW弯头相似,只是梯形区域的内表面已加工成螺纹。安装和拆卸更方便,有利于管道维修和保养。


基于结构材料的弯头类型

不锈钢弯头:ASTM A403 WP Gr. 304、304H、309、310、316、316L、317L、321、347、904L

碳钢弯头:ASTM A 234、WPB、WPBW、WPHY 42、WPHY 46、WPHY 52、WPH 60、WPHY 65 和 WPHY 70。

低温碳钢弯头:ASTM A420 WPL3、A420 WPL6

合金钢弯头:ASTM/ASME A/SA 234 Gr. WP 1、WP 5、WP 9、WP 11、WP 12、WP 22、WP 91

双相钢弯头:ASTM A 815、ASME SA 815 UNS NO S31803、S32205。沃克斯托夫编号 1.4462

镍合金弯头:ASTM/ASME SB 336 UNS 2200(镍 200)、UNS 2201(镍 201)、UNS 4400(蒙乃尔合金 400)、UNS 8020(合金 20/20 CB 3、UNS 8825 铬镍铁合金 (825)、UNS 6600(铬镍铁合金 600)、UNS 6601(铬镍铁合金 601)、UNS 6625(铬镍铁合金 625)、UNS 10276(哈氏合金 C 276)

管弯头最终

其他一些类型的弯头

除了上述定义的弯头外,还有几种类型的弯头不经常使用。下面定义了其中的几个。

异径弯头

异径弯头是一种用于连接两根不同尺寸的管道的配件。异径弯头之所以如此称呼,是因为它看起来像一个异径件和弯头合二为一。异径弯头省去了一个管件(异径管),减少了三分之一以上的焊接。此外,在异径弯头的整个弧度上逐渐减小直径,提供了较低的流动阻力,并减少了水流湍流和潜在内部侵蚀的影响。这些功能可防止管路中出现相当大的压降。

对于许多供应商来说,它是一种非标准产品,导致价格高昂,交货时间长。如果情况允许,可以选择使用带有单独减速器的“普通”弯头。


外螺纹管弯头和内螺纹管弯头

外螺纹管弯头和内螺纹管弯头是流行的管接头,可提供油管运行的流体流动方向变化。外管弯头用于将分数管连接到内锥管螺纹,而内弯头用于将分数管连接到 NPT 外螺纹。这些类型的管接头(如外弯头和内弯头)专门设计用于化工、石油、流体动力、电子以及纸浆和造纸厂使用的仪表、过程和控制系统以及设备。


弯头壁厚

肘部最薄弱的点是内半径。ASME B16.9 仅标准化了中心到面尺寸和一些“垂直度”尺寸公差。熔接线位置的壁厚甚至是标准化的,但不是通过弯头的其余部分。该标准规定,最小公差将在管道最小订购壁厚的 12.5% 以内。仅在管接头的端部指定最大公差。许多对焊弯头供应商提供一个更大的厚度,以便在成型后保留足够的壁厚。

如何购买管弯头?

弯头管件是一种非常重要的管件。当我们谈论弯头时,它指的是一段带有急剧弯曲的管道。弯头是广泛应用于各个工业部门管件的配件配件。弯头经常用于加压应用,并有各种形状和尺寸可供选择,用于不同的应用。弯头是安装在两根长度的管道或管子之间的配件,允许改变方向,通常在 90° 或 45° 方向上。

正确购买弯头需要考虑某些因素。这些因素是:

弯头管
  • 材料
  • 大小
  • 标准型
  • 螺纹式
  • 最大限度地保证可靠性能
    • 高压
    • 高冲量
    • 高真空
    • 高振动
    • 高温

大家都知道,管道和无缝弯头都承受着压力,也就是运行时压力很大。一般情况下,设计安装的无缝弯头厚度的安全系数约为六倍。例如219*8无缝弯头,管道介质是普通水,温度通常不高于一百摄氏度,爆破这样的无缝弯头所需的压力在300公斤左右,即管道内部的压力需要达到PN30,无缝弯头就会被爆破, 而这个肘部的作压力大概也差不多了。估计最高不会超过PN6.4,当然一般在PN4.0左右。随着管道的腐蚀,无缝弯头也会受到不同程度的腐蚀。为了保证其安全运行,大修的必要性很大。

目前制作无缝弯头的工艺会导致后弧变薄的现象。一般情况下,嘴的壁厚会比后弧薄两毫米左右。即使后弧变薄,常见的厚度和压力也不会变薄。安全隐患太多了,因为肘部直到肘部发生危险事故才更换。但作为一个严谨的工程,有什么不一样的,管道内部的介质也负责,不仅仅是水。可能有油污或其他杂质,温度高,压力大,后弧的厚度作为薄弱点决定了无缝弯头的寿命。因此,检测后弧的重要性自然很大。使用测厚仪,直接读取弯头处某个点的厚度。

检测弯头内外径:例如检测弯头外径尺寸D:参考上下限的数据,实际测量的产品外径在上下限之间合格,不合格产品在上限或下限范围之外。

检测弯头壁厚:使用测厚仪直接读取弯头最薄部分的厚度。

检测肘部中心高度:首先测量肘部外圆的长度。使用这个长度值 /1.57,减去弯头直径的一半得到的值就是弯头的中心高度。

检测弯头重量:弯头由钢管制成。我们只知道肘部被切割时肘部的重量,以及肘部的大小和肘部的后弧度。尺寸基本相同。我们来计算一下弯头后弧的长度:弯头的直径为D,曲率半径为1.5D,肘部的后弧长度为(1.5+0.5)*D*2*3.14/4简化,我们可以得到的1.5倍肘后弧长L=D*3.14。这只是一个估计。中国标准的值略小于此值。后弧长度为L后,钢管重量按钢管的计算公式计算:(Da)*a*0.02466*L/1000,(a为弯头的壁厚),这个重量的单位是KG,所以我们可以得到碳钢弯头的重量。如果是不锈钢弯头,只需将0.02466替换为0.02491即可。然后将计算出的理论重量与实际重量进行比较。

弯头的射线照相检查:射线照相检查可检测弯头的体积缺陷,如气孔、夹渣、收缩腔和松动等。

弯头壁厚

肘部最薄弱的点是内半径。ASME B16.9 仅标准化了中心到面尺寸和一些“垂直度”尺寸公差。熔接线位置的壁厚甚至是标准化的,但不是通过弯头的其余部分。该标准规定,最小公差将在管道最小订购壁厚的 12.5% 以内。仅在管接头的端部指定最大公差。

许多对焊弯头(和三通)供应商提供一个更大的厚度,以便在成型后保持足够的壁厚。


钢管弯头涂层

除了制造质量之外,钢管弯头的寿命和可靠性在很大程度上取决于所用涂层的类型和质量。然而,在管道弯头上涂上涂层不仅仅是为了防止腐蚀,还会影响流经管道的均匀性以及防止管道内容物(例如食品或饮用水)污染的需要。我们为钢管弯头提供耐腐蚀涂层服务,我们的涂层服务包括轻油、黑色喷漆、FBE涂层、2层或3层PE涂层、热镀锌。

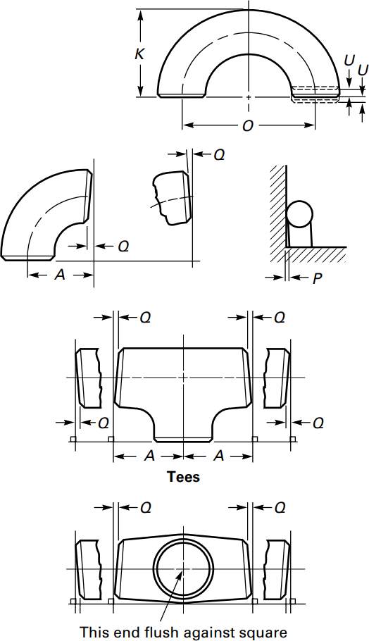
ASME / ANSI B16.9 尺寸

ASME B16.9 标准涵盖了尺寸为 NPS 1⁄2 至 NPS 48(DN 15 至 DN 1200)的工厂制造的锻造对焊管件的外形尺寸、公差、额定值、测试和标记。

名义外径90°弯头45°弯头180° 回归
管道尺寸
长半径短半径长半径长半径
(英寸)(毫米)(英寸)从中心到面从中心到面从中心到面半径中心到中心回到脸



(英寸)(英寸)(英寸)(英寸)(英寸)(英寸)
1/221.30.841.55/8
21.875
3/426.71.051.1257/16
2.251.6875
133.41.3151.517/8
32.1875
1.2542.21.661.8751.251
3.752.75
1.548.31.92.251.51.12534.53.25
260.32.375321.375464.1875
2.5732.8753.752.51.7557.55.1875
388.93.54.532696.25
3.5101.645.253.52.25710.57.25
4114.34.5642.58128.25
5141.35.5637.553.125101510.3125
6168.36.625963.75121812.3125
8219.18.6251285122416.3125
10273.110.7515106.25153020.375
12323.912.7518127.5183624.375

焊接管件的公差

标称管道尺寸 NPS角度公差角度公差
大小偏角 Q平面外 P
1/2 至 40.030.06
5 至 80.060.12
10 至 120.090.19
14 至 160.090.25
18 至 24 岁0.120.38
26 至 300.190.38
32 至 420.190.5
44 至 480.180.75

所有尺寸均以英寸为单位。除非另有说明,否则公差相等于正负。

  1. 不圆是正负公差的绝对值之和。
  2. 此公差可能不适用于需要增加壁厚以满足 ASME B16.9 设计要求的成型管件的局部区域。
  3. 内径和末端的标称壁厚由买方指定。
  4. 除非买方另有规定,否则这些公差适用于公称内径,公称内径等于公称外径与公称壁厚的两倍之间的差值。

ASME B16.9 管件可在 ASME 锅炉和压力容器规范 (BPVC) 以及 ASME 压力管道规范的管辖范围内使用。参考符合 ASME B16.5 的法兰压力等级,它们可以指定为 150、300、600、900、1500 和 2500 级。ASME B16.9 管件的允许压力等级可以根据 ASME B31 压力管道规范适用部分中规定的规则计算为等效材料的直无缝管。



配件设计

根据 ASME B16.9 制造的对焊管件的设计应通过以下方法之一确定:(a) 压力容器或管道规范中包含的数学分析;(b) 验证测试;(c) 通过水压测试进行实验应力分析以验证实验结果;(d) 详细的应力分析与结果评估。


标准标记

一般来说,ASME B16.9管件应进行标记以显示以下详细信息:“商标+材料等级+壁厚+尺寸+热数”。例如,“M ASTM A234 WP5 SCH80 6” 385“。使用钢印章时,应
注意标记不够深或不够锋利,以免造成裂纹或将管件的壁厚减少到允许的最小值以下。


材料与制造

ASME B16.9 管件可由多种材料制成,包括 (1) 符合 ASTM A234 和 ASTM A420 的碳钢和低合金钢;(2) 符合 ASTM A403 和 ASTM A815 的奥氏体和双相不锈钢;(3) 符合 ASTM B366 的镍合金;(4) 符合 ASTM B361 的铝合金;(5) 符合 ASTM B363 的钛合金。


管件尺寸公差符合 ASME B16.9:

ASME B16.9

尺寸 1/2“ – 48”

  • ASME / ANSI B16.9 对焊弯头 – 长半径
  • ASME / ANSI B16.9 对焊弯头 – 短半径
  • ASME / ANSI B16.9 对焊异径弯头
  • ASME/ANSI B16.9 对焊 45° 弯头
  • ASME / ANSI B16.9 对焊装配制三通
  • ASME / ANSI B16.9 对焊异径管
  • ASME / ANSI B16.9 对焊同心异径管
  • ASME / ANSI B16.9 对焊偏心异径管
  • ASME/ANSI B16.9 对焊 3D 弯头
  • ASME/ANSI B16.9 对焊短截端
  • ASME / ANSI B16.9 对焊交叉
  • ASME / ANSI B16.9 对焊异径十字
  • ASME / ANSI B16.9 对焊三通
  • ASME/ANSI B16.9 对焊端盖
  • ASME / ANSI B16.9 对焊联轴器
  • ASME / ANSI B16.9 对焊管接头
  • ASME/ANSI B16.9 对焊 5D 弯头
  • ASME / ANSI B16.9 对焊管件
标准

标准

管件尺寸为公制或标准英制。

由于管件涵盖了管件尺寸的几个方面,因此这里只能给出最常见的管件尺寸。应用最多的版本是 90° 长半径和 45° 弯头,而如果空间太小,则应用 90° 短半径弯头。180°弯头的功能是通过180°改变流动方向。LR 和 SR 类型的中心到中心尺寸都是匹配的 90° 弯头的两倍。这些配件通常用于毛皮或其他加热或冷却装置。

下面列出了一些适用于对焊配件的标准。许多组织,如 ASME、ASTM、ISO、MSS 等,都制定了非常完善的对焊管件标准和规范。设计人员始终有责任确保他们在设计过程中遵循适用的标准和公司规范(如果有)。

一些广泛使用的管件标准如下:

ASME 美国机械工程师协会

这是世界上制定规范和标准的知名组织之一。
管件的附表号从 ASME/ANSI B16 开始。ASME/ANSI B16标准针对不同管件的各种分类如下:

  • ASME/ANSI B16.1 – 1998 – 铸铁管法兰和法兰管件
  • ASME/ANSI B16.3 – 1998 – 可锻铸铁螺纹管件
  • ASME/ANSI B16.4 – 1998 – 铸铁螺纹接头
  • ASME/ANSI B16.5 – 1996 – 管法兰和法兰管件
  • ASME/ANSI B16.11 – 2001 – 锻钢管件,承插焊和螺纹
  • ASME/ANSI B16.14 – 1991 – 带管螺纹的黑色金属管塞、衬套和锁紧螺母
  • ASME/ANSI B16.15 – 1985 (R1994) – 铸青铜螺纹接头
  • ASME/ANSI B16.25 – 1997 – 对焊端
  • ASME/ANSI B16.36 – 1996 – 孔板法兰等

ASTM 国际美国测试与材料协会

这是世界上最大的自愿标准制定组织之一。它最初被称为美国材料与试验协会 (ASTM)。

  • ASTM A105/A105M – 管道应用用碳钢锻件规范
  • ASTM A234/A234M – 中高温用锻碳钢和合金钢管件规范
  • ASTM A403/A403M – 锻造奥氏体不锈钢管件规范
  • ASTM A420/A420M – 低温使用用锻造碳钢和合金钢管件标准规范

AWWA:美国水务协会

AWWA 关于 – 美国水务协会成立于 1881 年,是最大的非营利性、科学和教育协会,致力于管理和处理水这一世界上最重要的资源。

  • AWWA C110 – 球墨铸铁和灰铸铁配件,3 英寸至 48 英寸(75 毫米至 1200 毫米),用于水和其他液体
  • AWWA C208 – 装配式钢制水管件尺寸

ANSI 美国国家标准协会

ANSI 是一个私人非营利组织。其主要职能是管理和协调美国自愿标准化和合格评定体系。它为制定美国国家标准提供了一个论坛。ANSI 分配“计划编号”。这些数字对不同压力用途的壁厚进行了分类。


MSS 标准:制造商标准化协会

阀门和管件行业制造商标准化协会 (MSS) 是一个非营利性技术协会,旨在开发和改进行业、国家和国际规范和标准:阀门、阀门执行器、阀门改装、管件、管吊架、管道支架、法兰和相关密封件

  • MSS SP-43 – 锻造不锈钢对焊管件,包括参考其他耐腐蚀材料
  • MSS SP-75 – 高测试锻造对焊管件规格
  • MSS SP-73 – 铜和铜合金压力接头的钎焊接头
  • MSS SP-83 – 3000 级钢管接头,承插焊和螺纹
  • MSS SP-97 – 整体增强锻造分支出口配件 — 承插焊、螺纹和对焊端
  • MSS SP-106 – 铸铜合金法兰和法兰管件 125、150 和 300 级
  • MSS SP-119 – 工厂制造的锻造喇叭端承插焊配件

“标准”和“代码”之间的区别

管道规范意味着各种管道和管道系统的设计、制造、材料使用、测试和检查的要求。它拥有法典规定的有限管辖权。另一方面,管道标准意味着管件的应用设计和施工规则以及要求,如适配器、法兰、套筒、弯头、活接头、三通、阀门等。与代码一样,它也有标准定义的有限范围。


影响标准的因素

管件的“标准”基于以下某些因素:

  • 压力-温度额定值
  • 大小
  • 设计
  • 涂料
  • 材料
  • 标记
  • 端部连接
  • 尺寸和公差
  • 线程
  • 花纹锥度等

BSP英标管

BSP 是英国管件标准。这是指一系列标准螺纹类型,用于通过将外螺纹(外螺纹)与内螺纹(内螺纹)配合来互连和密封管端。这已被国际采用。它也被称为英国标准管锥螺纹 (BSPT) 或英国标准管平行(直)螺纹 (BSPP)。BSPT 仅通过螺纹实现压密接头,而 BSPP 需要密封圈。


JIS日本工业标准

这是日本工业标准或用于日本管道、管材和管件的工业活动的标准,并通过日本标准协会发布。


NPT 国家管螺纹

国家管螺纹是美国标准直 (NPS) 螺纹或锥形 (NPT) 螺纹。这是美国最流行的管件标准。NPT 管件基于管件的内径 (ID)。


螺栓和螺母

我们是法兰螺栓和螺母的制造商,并提供高质量的产品

  • A193 = 本规范涵盖用于高温或高压工况或其他特殊用途应用的压力容器、阀门、法兰和配件的合金和不锈钢螺栓材料。
  • A320 = 低温使用用合金钢和不锈钢螺栓材料的标准规范。
  • A194 = 许多不同材料类型螺母的标准规格。

AN 在这里,“A”代表陆军,“N”代表海军

AN 标准最初是为美国军方设计的。无论何时,管件是 AN 管件,都意味着管件是在管件的外径上测量的,即以 1/16 英寸的增量。

例如,AN 4 接头是指外径约为 4/16“ 或 1/4” 的接头。需要注意的是,近似很重要,因为外径不是与等效 NPT 螺纹的直接配合。


破折号 (-) 大小

仪表板尺寸是用于指代软管内径的标准。这用两位数字表示尺寸,该数字表示以十六分之一英寸为单位的相对 ID。这也可以与 AN 接头互换使用。例如,破折号“8”接头表示 AN 8 接头。


ISO国际标准化组织

ISO是国际标准化组织的工业管材、管材和管件标准和规范。ISO 标准已编号。它们的格式如下:

“ISO[/IEC] [IS] nnnnn[:yyyy] Title”,其中

  • nnnnn:标准编号
  • yyyy:发布年份,以及
  • 标题:描述主题

通用标准

标准规范
ASTM A234中高温用锻碳钢和合金钢管件标准规范
ASTM A420低温服役用锻造碳钢和合金钢管件标准规范
ASTM A234 WPBASTM A234 WPB是指特定等级的碳钢管件,广泛用于压力管道和压力容器制造,在中温和高温下使用。
ASME B16.9ASME B16.9 标准涵盖了尺寸为 NPS 1⁄2 至 NPS 48(DN 15 至 DN 1200)的工厂制造的锻造对焊管件的外形尺寸、公差、额定值、测试和标记。
ASME B16.28ASME B16.28 标准涵盖了锻造碳钢和合金钢对焊短半径弯头和回位的额定值、外形尺寸、测试、公差和标记。
MSS SP-97MSS SP-97 标准实践涵盖对焊、承插焊和螺纹型 90 度整体增强锻造分支出口管件的基本尺寸、光洁度、公差、测试、标记、材料和最低强度要求。
ASTM A403锻造奥氏体不锈钢管件标准规范。

适用于所有应用领域的广泛品种

ASME的
圣 35.8 I
圣 35.8 III
15 Mo 3
13 CrMo 4 4
10
CrMo 9 10 圣 35 N
圣 52.0
圣 52.4
P235GH-TC1
P235GH-TC2
16Mo3
13CrMo4-5
10CrMo9-10
X10CrMoVNb9-1
P215NL
P265NL
L360NB
L360NE
P355N
P355NL1
P355NH
WPB
WPL6
WPL3
WPHY 52
WP11
WP22
WP5
WP9
WP91
WP92


交货

对配件进行目视检查,以检查任何表面缺陷。检查管件主体和焊缝是否有任何可见的表面缺陷,例如凹痕、模痕、孔隙、底切等。根据适用标准进行验收。从仓库到您身边,我们既要速度更要靠谱!全程追踪物流、品质护货不马虎,每一次交付都较真 “说到做到”,让客户更快 更满意的拿到心仪货品

包装

对于带喷漆的碳钢法兰的包装,我们会使用气泡膜来保护喷漆。对于未喷漆或长期运输上油的法兰,我们建议客户使用防锈纸和塑料袋以防止生锈。后期我们会根据客户的要求和实际情况 细致包装 保证客户收到完整的产品

ASTM A213 T91 Alloy Tube

The ASTM A213 T91 seamless tubes are primarily used for boiler, superheater, and

Tubes Erosion Shields

Tubes Erosion Shields are used to protect boiler tubing from the highly erosive

Rare Earth Alloy Wear-Resistant Pipe

The material of the rare earth alloy wear-resistant pipe is ZG40CrMnMoNiSiRe, wh

Ceramic Tile Lined Pipes

Ceramic tile lined pipes have very uniform coating of specially formulated ceram

Cast Basalt Lined Steel Pipe

Cast basalt lined steel pipe is composed by lined with cast basalt pipe, outside

Ceramic Lined Pipe

Ceramic lined pipe is made through self-propagating high-temperature synthesis (

QQ在线咨询 微信
微信订阅号
阿里旺旺 mail

您应享的尊贵服务体验

我们的响应式服务确保时效,专业团队精准把握您的需求,以白手套级服务标准为您快速配齐所需材料。

世界级客户服务随时提供帮助应用

世界级客户服务随时提供帮助应用

符合工程规格确保顶级品质应用

符合工程规格确保顶级品质应用

生产或制造过程无延误应用

生产或制造过程无延误应用

准时交付且价格公道的材料应用

准时交付且价格公道的材料应用