管帽 DIN 28011
DIN 28011 适用于外径为 Da ≤ 4000 mm、公称壁厚为 s ≤ 50 mm 的带和不带焊缝的一体式头。
椭圆头(或命名为椭圆头)是由旋转椭球体和圆柱形直截面两部分组成的头部。椭圆形罐头被制造成具有某种形状,而不是特定的盘半径或转向节半径。碟形半径约为直径的 90%,转向节半径约为直径的 17%。2:1 椭圆形法兰头和碟形头符合 ASME 标准。

椭圆头通常用于在高压条件下运行的储罐和压力容器的设计和建造。它们通常用于圆柱形容器的末端,从圆柱形部分过渡到末端闭合。
椭圆头的一些常见应用包括:
椭圆头广泛应用于需要压力容器、储罐或热交换器在高压和高温下运行的各个行业。椭圆头的具体应用、尺寸、材料和厚度取决于项目的要求和设计标准。
管帽安装在管道末端或焊接到管道末端,提供液密或气密密封。 端盖用于连接不同直径的管道,广泛应用于各种化工、建筑行业、造纸、水泥和造船厂。 管帽以其最大的产量和出色的效果而广为人知。 它通常由一块钢板制成,因此应该是无缝的。管端盖有多种形状可供选择,如半球形、椭圆形、圆形等。 在批量购买管帽之前,买方应考虑一些关键标准。必须考虑以下关键要求: 当必须保护的物品具有 NPT 外螺纹时,此特性适用于圆形瓶盖。 此尺寸选择仅适用于圆形瓶盖,并且要封盖的物品上有 BSP 外螺纹。 只有圆盖和塞子可以制造具有这一关键尺寸。当管件具有直螺纹时,主螺纹直径是要考虑的最关键因素。然而,当盖子、塞子或要盖盖的物品具有锥形(NPT 或 BSP)螺纹时,其尺寸并不是需要考虑的关键因素。 管帽的尺寸和形状是其他需要考虑的关键因素。不同的管帽具有鲜明的特点。功能包括: 圆帽: 法兰、开槽头、滚花或多面头、固定头和撕片都是圆盖的常见特征。法兰的设计使拆卸管道或管子变得简单或提供额外的保护。此外,法兰有助于防止塞子无意中从孔中弹出。螺丝刀可以轻松戴上或取下一字盖。通常,只有螺纹盖和塞子才适用于滚花头或刻面头。使用刻面或滚花轻松安装和拆卸。拆卸带有撕片或条带的管盖很简单。 方形或矩形盖:在选择方形或矩形帽子时,最应该考虑长度和宽度。对于方形瓶盖,长度和宽度是相同的尺寸,但宽度是矩形瓶盖的较小横截面测量值。 ASTM A234/A234M 是中高温使用锻造碳钢和合金钢管件的标准规范。本规范涵盖了用于石油和天然气、石化和发电行业各种应用的多个等级的配件。 每比规定的 C 最大值减少 0.01%,则允许比规定的最大值增加 0.06% Mn,最高可达 1.35%。 Cu、Ni、Cr、Mo之和不得超过1.00%。 Cr和Mo的总和不得超过0.32%。 根据热分析和公式 C.E.=C+Mn/6+(Cr+Mo+V)/5+(Ni+Cu)/15,最大碳当量 (C.E.) 应为 0.50。 ASME B16.9 标准涵盖了尺寸为 NPS 1⁄2 至 NPS 48(DN 15 至 DN 1200)的工厂制造的锻造对焊管件的外形尺寸、公差、额定值、测试和标记。 所有尺寸均以英寸为单位。除非另有说明,否则公差相等于正负。 ASME B16.9 管件可在 ASME 锅炉和压力容器规范 (BPVC) 以及 ASME 压力管道规范的管辖范围内使用。参考符合 ASME B16.5 的法兰压力等级,它们可以指定为 150、300、600、900、1500 和 2500 级。ASME B16.9 管件的允许压力等级可以根据 ASME B31 压力管道规范适用部分中规定的规则计算为等效材料的直无缝管。 根据 ASME B16.9 制造的对焊管件的设计应通过以下方法之一确定:(a) 压力容器或管道规范中包含的数学分析;(b) 验证测试;(c)通过水压试验进行实验应力分析,以验证实验结果;(d) 详细的应力分析及结果评估。 一般ASME B16.9管件应标明以下详细信息:“商标+材料等级+壁厚+尺寸+热号”。例如,“M ASTM A234 WP5 SCH80 6” 385“。使用钢印章时,应 ASME B16.9 管件可由多种材料制成,涵盖 (1) 符合 ASTM A234 和 ASTM A420 的碳钢和低合金钢;(2)符合ASTM A403和ASTM A815的奥氏体和双相不锈钢;(3)符合ASTM B366的镍合金;(4)符合ASTM B361的铝合金;(5) 符合 ASTM B363 的钛合金。 尺寸 1/2“ – 48” 端盖通常由一块钢板制成,因此应该是无缝的。管端盖有多种形状可供选择,如半球形、椭圆形、圆形等。 尺寸范围:1/2 至 56 英寸(DN15 至 DN1400) 压力:SCH5至SCH160v 壁厚:sch10、sch20、sch30、std、sch40、sch60、xs、sch80、sch100、sch120、sch140、sch160、xxs、sch5s、sch20s、sch40s、sch80s 最大壁厚:200mm 根据不同的材料,管帽有碳钢帽、不锈钢帽、合金钢帽等。 根据其结构,管帽包括螺纹帽、锥形帽和防滚帽等。 ISO - 尺寸特征
NPT(国家管螺纹)尺寸
BSP(英国标准管)尺寸
直径
形状
ASTM A234/A234M 的化学成分 (%)
年级 类型 C 是的 S P 锰 铬 它 莫 其他 欧布 熊 D5 WPB的 0.3 0.1分钟 0.058 0.05 0.29-1.06 0.4 0.4 0.15 V:0.06;酒精:0.02 415-585 240 22 197 木塑 0.35 0.1分钟 0.058 0.05 0.29-1.06 0.4 0.4 0.15 V:0.06;酒精:0.02 485-655 275 22 197 WP1 0.28 0.1-0.5 0.045 0.045 0.3-0.9 0.44-0.65 380-550 205 22 197 WP12 CL1 0.05-0.2 0.6 0.045 0.045 0.3-0.8 0.8-1.25 0.44-0.65 415-585 220 22 197 WP12 CL2 0.05-0.2 0.6 0.045 0.045 0.3-0.8 0.8-1.25 0.44-0.65 485-655 275 22 197 WP11 CL1 0.05-0.15 0.5-1 0.03 0.03 0.3-0.6 1-1.5 0.44-0.65 415-585 205 22 197 WP11 CL2 0.05-0.2 0.5-1 0.04 0.04 0.3-0.8 1-1.5 0.44-0.65 485-655 275 22 197 WP11 CL3 0.05-0.2 0.5-1 0.04 0.04 0.3-0.8 1-1.5 0.44-0.65 520-690 310 22 197 WP22 CL1 0.05-0.15 0.5 0.04 0.04 0.3-0.6 1.9-2.6 0.87-1.13 415-585 205 22 197 WP22 CL3 0.05-0.15 0.5 0.04 0.04 0.3-0.6 1.9-2.6 0.87-1.13 520-690 310 22 197 WP5 CL1 0.15 0.5 0.03 0.04 0.3-0.6 4-6 0.44-0.65 415-585 205 22 217 WP5 CL3 0.15 0.5 0.03 0.04 0.3-0.6 4-6 0.44-0.65 520-690 310 22 217 WP9 CL1 0.15 1 0.03 0.03 0.3-0.6 8-10 0.9-1.1 415-585 205 22 217 WP9 CL3 0.15 1 0.03 0.03 0.3-0.6 8-10 0.9-1.1 520-690 310 22 217 WPR的 0.2 0.05 0.045 0.4-1.06 1.6-2.24 435-605 315 22/28 217 WP91型 0.08-0.12 0.2-0.5 0.01 0.02 0.3-0.6 8-9.5 0.4 0.85-1.05 参见 sdandard 585-760 415 20 248 WP911型 0.09-0.13 0.1-0.5 0.01 0.02 0.3-0.6 8.5-10.5 0.4 0.9-1.1 参见 sdandard 620-840 440 20 248 笔记:
ASTM A234 的机械性能
拉伸要求 WPB的 木塑、WP11CL2 WP11CL1 WP11CL3 拉伸强度,最小值,ksi[MPa]
(0.2% 偏移或 0.5% 负载下拉伸)60-85
[415-585]70-95
[485-655]60-85
[415-585]75-100
[520-690]屈服强度,最小,ksi[MPa] 32
[240]40
[275]30
[205]45
[310]ASME / ANSI B16.9 尺寸
名义 外径 90°弯头 45°弯头 180° 回归 管道尺寸 长半径 短半径 长半径 长半径 (英寸) (毫米) (英寸) 从中心到面 从中心到面 从中心到面 半径 中心到中心 回到脸 (英寸) (英寸) (英寸) (英寸) (英寸) (英寸) 1/2 21.3 0.84 1.5 – 5/8 2 1.875 3/4 26.7 1.05 1.125 – 7/16 2.25 1.6875 1 33.4 1.315 1.5 1 7/8 3 2.1875 1.25 42.2 1.66 1.875 1.25 1 3.75 2.75 1.5 48.3 1.9 2.25 1.5 1.125 3 4.5 3.25 2 60.3 2.375 3 2 1.375 4 6 4.1875 2.5 73 2.875 3.75 2.5 1.75 5 7.5 5.1875 3 88.9 3.5 4.5 3 2 6 9 6.25 3.5 101.6 4 5.25 3.5 2.25 7 10.5 7.25 4 114.3 4.5 6 4 2.5 8 12 8.25 5 141.3 5.563 7.5 5 3.125 10 15 10.3125 6 168.3 6.625 9 6 3.75 12 18 12.3125 8 219.1 8.625 12 8 5 12 24 16.3125 10 273.1 10.75 15 10 6.25 15 30 20.375 12 323.9 12.75 18 12 7.5 18 36 24.375 焊接管件的公差
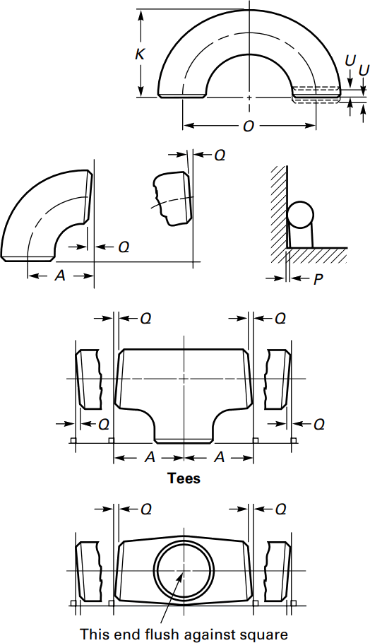
标称管道尺寸 NPS 角度公差 角度公差 大小 偏角 Q 平面外 P 1/2 至 4 0.03 0.06 5 至 8 0.06 0.12 10 至 12 0.09 0.19 14 至 16 0.09 0.25 18 至 24 岁 0.12 0.38 26 至 30 0.19 0.38 32 至 42 0.19 0.5 44 至 48 0.18 0.75 配件设计
标准标记
注意标记不够深或不够锋利,以免造成裂纹或将管件的壁厚减少到允许的最小值以下。材料与制造
管件尺寸公差符合 ASME B16.9:

大小
外径 大尺寸 壁厚符合“E” DN NPS的 和 E1 和 15 1/2 25 25 3.73 20 3/4 25 25 3.91 25 1 38 38 4.55 32 1 1/4 38 38 4.85 40 1 1/2 38 38 5.08 50 2 38 44 5.54 65 2 1/2 38 51 7.01 80 3 51 64 7.62 90 3 1/2 64 76 8.08 100 4 64 76 8.56 125 5 76 89 9.53 150 6 89 102 10.97 200 8 102 127 12.7 250 10 127 152 12.7 300 12 152 178 12.7 350 14 165 191 12.7 400 16 178 203 12.7 450 18 203 229 12.7 500 20 229 254 12.7 550 22 254 254 12.7 600 24 267 305 12.7 650 26 267 700 28 267 750 30 267 800 32 267 850 34 267 900 36 267 950 38 305 1000 40 305 1050 42 305 1100 44 343 1150 46 343 1200 48 343 A234 WPB大直径电瓶盖尺寸范围
从 ND的 英寸 SCH20 SCH40 SCH80 性病 XS的 重量 重量 重量 重量 重量 88.9 80 3 0.66 0.92 0.66 0.92 114.3 100 4 1.17 1.67 1.17 1.67 141.3 125 5 1.91 2.78 1.91 2.78 168.3 150 6 2.9 4.47 2.9 4.47 219.1 200 8 4.09 5.19 8.05 5.19 8.05 273 250 10 6.36 9.15 12.5 9.15 12.5 323.8 300 12 9.08 14.4 26.8 13.2 17.3 355.6 350 14 13.2 18.8 34.5 15.9 20.4 406.4 400 16 16.8 26.7 47.7 20.4 26.3 457.2 450 18 24.8 41.8 67.7 25.9 33.6 508 500 20 32.2 54.9 91.3 32.2 42.7 558.8 550 22 37.7 49.9 609.6 600 24 46.3 93.1 155 46.3 59.5 端盖 DIN 2617 标准尺寸

外径
mm壁厚
mm高度
mm重量
公斤D 第1节 21,3 2,0 25,0 0,060 26,9 2,3 32,0 0,070 33,7 2,6 38,0 0,110 3,2 0,130 42,4 2,6 38,0 0,130 3,6 0,170 48,3 2,6 38,0 0,200 4,0 0,230 60,3 2,9 38,0 0,280 4,5 0,320 76,1 2,9 38,0 0,340 5,0 0,390 88,9 3,2 51,0 0,530 5,6 0,700 108,0 3,6 64,0 1,000 114,3 3,6 64,0 1,000 6,3 1,500 133,0 4,0 76,0 1,600 139,7 4,0 76,0 1,700 6,3 2,500 159,0 4,5 90,0 2,400 168,3 4,5 89,0 2,650 7,1 3,550 219,0 6,3 100,0 5,550 8,0 6,700 273,0 6,3 127,0 8,800 323,9 7,1 152,0 14,000 355,6 8,0 165,0 16,500 406,4 8,8 178,0 18,200 508,0 11,0 229,0 38,000 DIN 28011 管端盖尺寸

尺寸 D1 x S 高度 L 重量/公斤 21,3 x 2,0 9,0 0,01 26,9 x 2,0 9,0 0,01 33,7 x 2,0 13,0 0,02 42,4 x 2,0 13,0 0,04 48,3 x 2,0 13,5 0,05 60,3 x 2,0 18,5 0,07 76,1 x 2,0 20,5 0,10 88,9 x 2,0 25,0 0,15 114,3 x 2,0 28,0 0,26 114,3 x 3,0 29,0 0,39 139,7 x 3,0 38,5 0,60 168,3 x 3,0 47,5 0,90 219,1 x 3,0 63,5 1,32 273,0 x 3,0 93,0 1,95 323,9 x 3,0 102,0 2,70 355,6 x 3,0 109,0 3,80 406,4 x 3,0 123,0 5,00 457,2 x 3,0 123,0 6,10 508,0 x 3,0 133,0 7,60 指标维度
尺寸 D1 x S 高度 L 重量/公斤 20,0 x 2,0 9,0 0,02 25,0 x 2,0 9,0 0,03 30,0 x 2,0 13,5 0,03 35,0 x 2,0 13,5 0,04 44,0 x 2,0 15,0 0,04 54,0 x 2,0 15,0 0,05 70,0 x 2,0 19,5 0,07 84,0 x 2,0 24,0 0,15 104,0 x 2,0 28,0 0,20 129,0 x 2,0 37,0 0,36 154,0 x 2,0 43,0 0,50 156,0 x 3,0 44,0 0,94 204,0 x 2,0 62,0 0,80 206,0 x 3,0 63,0 1,20 254,0 x 2,0 72,0 1,30 256,0 x 3,0 73,0 1,95 306,0 x 3,0 83,0 2,50 盖几何形状
外径 大尺寸 壁厚符合“E” DN NPS的 和 E1 和 15 1/2 25 25 3.73 20 3/4 25 25 3.91 25 1 38 38 4.55 32 1 1/4 38 38 4.85 40 1 1/2 38 38 5.08 50 2 38 44 5.54 65 2 1/2 38 51 7.01 80 3 51 64 7.62 90 3 1/2 64 76 8.08 100 4 64 76 8.56 125 5 76 89 9.53 150 6 89 102 10.97 200 8 102 127 12.7 250 10 127 152 12.7 300 12 152 178 12.7 350 14 165 191 12.7 400 16 178 203 12.7 450 18 203 229 12.7 500 20 229 254 12.7 550 22 254 254 12.7 600 24 267 305 12.7 650 26 267 700 28 267 750 30 267 800 32 267 850 34 267 900 36 267 950 38 305 1000 40 305 1050 42 305 1100 44 343 1150 46 343 1200 48 343 盖管件的理论重量
D(英寸) DN 从 SCH5 的 SCH10 的 SCH10 SCH20 SCH30 SCH40 年代 性病 SCH40 1/8" 6 10.3 - 1.24 1.73 1.73 1.73 1/4" 8 13.7 - 1.65 - - - 2.24 2.24 2.24 3/8" 10 17.1 - 1.65 - - - 2.31 2.31 2.31 1/2" 15 21.3 1.65 2.11 - - - 2.77 2.77 2.77 3/4" 20 26.7 1.65 2.11 - - - 2.87 2.87 2.87 1" 25 33.4 1.65 2.77 - - - 3.38 3.38 3.38 11/4" 32 42.2 1.65 2.77 - - - 3.56 3.56 3.56 11/2" 40 48.3 1.65 2.77 - - - 3.68 3.68 3.68 2" 50 60.3 1.65 2.77 - - - 3.91 3.91 3.91 21/2" 65 73 2.11 3.05 - - - 5.16 5.16 5.16 3" 80 88.9 2.11 3.05 - - - 5.49 5.49 5.49 31/2" 90 101.6 2.11 3.05 - - - 5.74 5.74 5.74 4" 100 114.3 2.11 3.05 - - - 6.02 6.02 6.02 5" 125 141.3 2.77 3.4 - - - 6.55 6.55 6.55 6" 150 168.3 2.77 3.4 - - - 7.11 7.11 7.11 8" 200 219.1 2.77 3.76 - 6.35 7.04 8.18 8.18 8.18 10" 250 273.1 3.4 4.19 - 6.35 7.8 9.27 9.27 9.27 12" 300 323.9 3.96 4.57 - 6.35 8.83 9.53 9.53 10.31 14" 350 355.6 3.96 4.78 6.35 7.92 9.53 - 9.53 11.13 16" 400 406.4 4.19 4.78 6.35 7.92 9.53 - 9.53 12.7 18" 450 457.2 4.19 4.78 6.35 7.92 11.13 - 9.53 14.27 20" 500 508 4.78 5.54 6.35 9.53 12.7 - 9.53 15.09 22" 550 558.8 4.78 5.54 6.35 9.53 12.7 - 9.53 24" 600 609.6 5.54 6.35 6.35 9.53 14.27 - 9.53 17.48 26" 650 660.4 - - 7.92 12.7 - - 9.53 - 28" 700 711.2 - - 7.92 12.7 15.88 - 9.53 - 30" 750 762 6.35 7.92 7.92 12.7 15.88 - 9.53 - 32" 800 812.8 - - 7.92 12.7 15.88 - 9.53 17.48 34" 850 863.6 - - 7.92 12.7 15.88 - 9.53 17.48 36" 900 914.4 - - 7.92 12.7 15.88 - 9.53 19.05 38" 950 965.2 - - - - - - 9.53 - 40" 1000 1016 - - - - - - 9.53 - 42" 1050 1066.8 - - - - - - 9.53 - 44" 1100 1117.6 - - - - - - 9.53 - 46" 1150 1168.4 - - - - - - 9.53 - 48" 1200 1219.2 - - - - - - 9.53 -
对配件进行目视检查,以检查任何表面缺陷。检查管件主体和焊缝是否有任何可见的表面缺陷,例如凹痕、模痕、孔隙、底切等。根据适用标准进行验收。从仓库到您身边,我们既要速度更要靠谱!全程追踪物流、品质护货不马虎,每一次交付都较真 “说到做到”,让客户更快 更满意的拿到心仪货品
对于带喷漆的碳钢法兰的包装,我们会使用气泡膜来保护喷漆。对于未喷漆或长期运输上油的法兰,我们建议客户使用防锈纸和塑料袋以防止生锈。后期我们会根据客户的要求和实际情况 细致包装 保证客户收到完整的产品
我们的响应式服务确保时效,专业团队精准把握您的需求,以白手套级服务标准为您快速配齐所需材料。