Ceramic Lined Bend With Flange

管帽 DIN 28011

DIN 28011 适用于外径为 Da ≤ 4000 mm、公称壁厚为 s ≤ 50 mm 的带和不带焊缝的一体式头。

下载 PDF 进入淘宝

DIN 28011 适用于外径为 Da ≤ 4000 mm、公称壁厚为 s ≤ 50 mm 的带和不带焊缝的一体式头。

盖子是为了关闭管道的两端。我们提供所有 DIN 2617 盖尺寸,有时也用于其他承诺。盖子的多种变体是椭圆形或碟形头。这些 DIN 2617 盖子材料盖用于关闭大直径管道,类似于用于建造容器的盖子。

  • 空气污染控制 - 燃煤电厂用洗涤器
  • 海水冷却装置
  • 建筑栏杆
  • 静电除尘器中的接线
  • 炼油 厂
  • 气体洗涤设备
  • 纸浆和造纸加工行业
  • 乙酸、磷酸和硫酸加工厂
  • 石油和天然气生产 – 海上工艺设备 海上、海水技术、化学工业、对硫酸和磷酸等中等强度的还原酸和各种氯介质具有良好的稳定性,炼油厂,造纸工业,纸浆工业

DIN 2617 盖的特性

  • 在各种大气环境中具有优异的耐腐蚀性
  • 在 870°C 的间歇使用和 925°C 的连续使用中具有良好的抗氧化性
  • 良好的抗碳化物析出能力
  • 良好的加工性能
  • DIN 2617 盖在高温下提供更高的强度
  • 无论是否使用填充金属,均具有出色的焊接性
31.jpg
30.jpg
32.jpg

产品属性

碳钢盖采用优质原材料制造。碳钢盖用于连接不同直径的管道,广泛应用于各种化工、建筑行业、造纸、水泥和造船厂。

  • 端部连接:对焊
  • 机身材质:碳钢
  • 阀体材料规格:ASTM A234 WPB
  • 时间表:Sch 40(标准)
  • 规格:B16.9
  • 规格类型:ANSI

特征

管帽安装在管道末端或焊接到管道末端,提供液密或气密密封。

端盖用于连接不同直径的管道,广泛应用于各种化工、建筑行业、造纸、水泥和造船厂。

管帽以其最大的产量和出色的效果而广为人知。

它通常由一块钢板制成,因此应该是无缝的。管端盖有多种形状可供选择,如半球形、椭圆形、圆形等。

在批量购买管帽之前,买方应考虑一些关键标准。必须考虑以下关键要求:

NPT(国家管螺纹)尺寸

当必须保护的物品具有 NPT 外螺纹时,此特性适用于圆形瓶盖。


BSP(英国标准管)尺寸

此尺寸选择仅适用于圆形瓶盖,并且要封盖的物品上有 BSP 外螺纹。


直径

只有圆盖和塞子可以制造具有这一关键尺寸。当管件具有直螺纹时,主螺纹直径是要考虑的最关键因素。然而,当盖子、塞子或要盖盖的物品具有锥形(NPT 或 BSP)螺纹时,其尺寸并不是需要考虑的关键因素。


形状

管帽的尺寸和形状是其他需要考虑的关键因素。不同的管帽具有鲜明的特点。功能包括:

圆帽: 法兰、开槽头、滚花或多面头、固定头和撕片都是圆盖的常见特征。法兰的设计使拆卸管道或管子变得简单或提供额外的保护。此外,法兰有助于防止塞子无意中从孔中弹出。螺丝刀可以轻松戴上或取下一字盖。通常,只有螺纹盖和塞子才适用于滚花头或刻面头。使用刻面或滚花轻松安装和拆卸。拆卸带有撕片或条带的管盖很简单。

方形或矩形盖:在选择方形或矩形帽子时,最应该考虑长度和宽度。对于方形瓶盖,长度和宽度是相同的尺寸,但宽度是矩形瓶盖的较小横截面测量值。

ASME / ANSI B16.9 尺寸

ASME B16.9 标准涵盖了尺寸为 NPS 1⁄2 至 NPS 48(DN 15 至 DN 1200)的工厂制造的锻造对焊管件的外形尺寸、公差、额定值、测试和标记。

名义外径90°弯头45°弯头180° 回归
管道尺寸
长半径短半径长半径长半径
(英寸)(毫米)(英寸)从中心到面从中心到面从中心到面半径中心到中心回到脸



(英寸)(英寸)(英寸)(英寸)(英寸)(英寸)
1/221.30.841.55/8
21.875
3/426.71.051.1257/16
2.251.6875
133.41.3151.517/8
32.1875
1.2542.21.661.8751.251
3.752.75
1.548.31.92.251.51.12534.53.25
260.32.375321.375464.1875
2.5732.8753.752.51.7557.55.1875
388.93.54.532696.25
3.5101.645.253.52.25710.57.25
4114.34.5642.58128.25
5141.35.5637.553.125101510.3125
6168.36.625963.75121812.3125
8219.18.6251285122416.3125
10273.110.7515106.25153020.375
12323.912.7518127.5183624.375

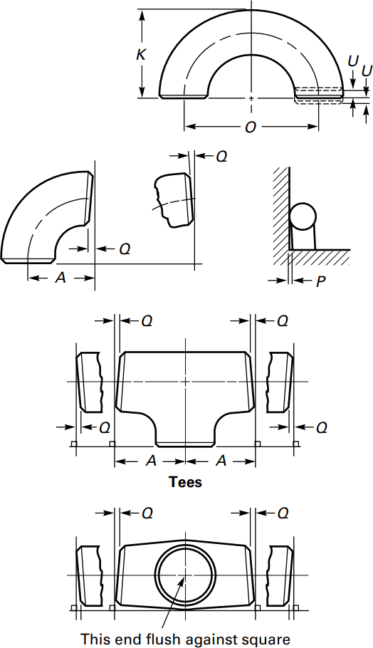
焊接管件的公差

标称管道尺寸 NPS角度公差角度公差
大小偏角 Q平面外 P
1/2 至 40.030.06
5 至 80.060.12
10 至 120.090.19
14 至 160.090.25
18 至 24 岁0.120.38
26 至 300.190.38
32 至 420.190.5
44 至 480.180.75

所有尺寸均以英寸为单位。除非另有说明,否则公差相等于正负。

  1. 不圆是正负公差的绝对值之和。
  2. 此公差可能不适用于需要增加壁厚以满足 ASME B16.9 设计要求的成型管件的局部区域。
  3. 内径和末端的标称壁厚由买方指定。
  4. 除非买方另有规定,否则这些公差适用于公称内径,公称内径等于公称外径与公称壁厚的两倍之间的差值。

ASME B16.9 管件可在 ASME 锅炉和压力容器规范 (BPVC) 以及 ASME 压力管道规范的管辖范围内使用。参考符合 ASME B16.5 的法兰压力等级,它们可以指定为 150、300、600、900、1500 和 2500 级。ASME B16.9 管件的允许压力等级可以根据 ASME B31 压力管道规范适用部分中规定的规则计算为等效材料的直无缝管。



配件设计

根据 ASME B16.9 制造的对焊管件的设计应通过以下方法之一确定:(a) 压力容器或管道规范中包含的数学分析;(b) 验证测试;(c)通过水压试验进行实验应力分析,以验证实验结果;(d) 详细的应力分析及结果评估。


标准标记

一般ASME B16.9管件应标明以下详细信息:“商标+材料等级+壁厚+尺寸+热号”。例如,“M ASTM A234 WP5 SCH80 6” 385“。使用钢印章时,应
注意标记不够深或不够锋利,以免造成裂纹或将管件的壁厚减少到允许的最小值以下。


材料与制造

ASME B16.9 管件可由多种材料制成,涵盖 (1) 符合 ASTM A234 和 ASTM A420 的碳钢和低合金钢;(2)符合ASTM A403和ASTM A815的奥氏体和双相不锈钢;(3)符合ASTM B366的镍合金;(4)符合ASTM B361的铝合金;(5) 符合 ASTM B363 的钛合金。


管件尺寸公差符合 ASME B16.9:

ASME B16.9

尺寸 1/2“ – 48”

  • ASME / ANSI B16.9 对焊弯头 – 长半径
  • ASME / ANSI B16.9 对焊弯头 – 短半径
  • ASME / ANSI B16.9 对焊异径弯头
  • ASME/ANSI B16.9 对焊 45° 弯头
  • ASME / ANSI B16.9 对焊装配制三通
  • ASME / ANSI B16.9 对焊异径管
  • ASME / ANSI B16.9 对焊同心异径管
  • ASME / ANSI B16.9 对焊偏心异径管
  • ASME/ANSI B16.9 对焊 3D 弯头
  • ASME/ANSI B16.9 对焊短截端
  • ASME / ANSI B16.9 对焊交叉
  • ASME / ANSI B16.9 对焊异径十字
  • ASME / ANSI B16.9 对焊三通
  • ASME/ANSI B16.9 对焊端盖
  • ASME / ANSI B16.9 对焊联轴器
  • ASME / ANSI B16.9 对焊管接头
  • ASME/ANSI B16.9 对焊 5D 弯头
  • ASME / ANSI B16.9 对焊管件

大小

端盖通常由一块钢板制成,因此应该是无缝的。管端盖有多种形状可供选择,如半球形、椭圆形、圆形等。

外径大尺寸壁厚符合“E”
DNNPS的E1
151/225253.73
203/425253.91
25138384.55
321 1/438384.85
401 1/238385.08
50238445.54
652 1/238517.01
80351647.62
903 1/264768.08
100464768.56
125576899.53
15068910210.97
200810212712.7
2501012715212.7
3001215217812.7
3501416519112.7
4001617820312.7
4501820322912.7
5002022925412.7
5502225425412.7
6002426730512.7
65026267

70028267

75030267

80032267

85034267

90036267

95038305

100040305

105042305

110044343

115046343

120048343

尺寸范围:1/2 至 56 英寸(DN15 至 DN1400)

压力:SCH5至SCH160v

壁厚:sch10、sch20、sch30、std、sch40、sch60、xs、sch80、sch100、sch120、sch140、sch160、xxs、sch5s、sch20s、sch40s、sch80s

最大壁厚:200mm


A234 WPB大直径电瓶盖尺寸范围

ND的英寸SCH20SCH40SCH80性病XS的
重量重量重量重量重量
88.9803
0.660.920.660.92
114.31004
1.171.671.171.67
141.31255
1.912.781.912.78
168.31506
2.94.472.94.47
219.120084.095.198.055.198.05
273250106.369.1512.59.1512.5
323.8300129.0814.426.813.217.3
355.63501413.218.834.515.920.4
406.44001616.826.747.720.426.3
457.24501824.841.867.725.933.6
5085002032.254.991.332.242.7
558.855022


37.749.9
609.66002446.393.115546.359.5

根据不同的材料,管帽有碳钢帽、不锈钢帽、合金钢帽等。

根据其结构,管帽包括螺纹帽、锥形帽和防滚帽等。


端盖 DIN 2617 标准尺寸

DIN 2617 瓶盖尺寸
外径
mm
壁厚
mm
高度
mm
重量
公斤
D第1节

21,32,025,00,060
26,92,332,00,070
33,72,638,00,110

3,2
0,130
42,42,638,00,130

3,6
0,170
48,32,638,00,200

4,0
0,230
60,32,938,00,280

4,5
0,320
76,12,938,00,340

5,0
0,390
88,93,251,00,530

5,6
0,700
108,03,664,01,000
114,33,664,01,000

6,3
1,500
133,04,076,01,600
139,74,076,01,700

6,3
2,500
159,04,590,02,400
168,34,589,02,650

7,1
3,550
219,06,3100,05,550

8,0
6,700
273,06,3127,08,800
323,97,1152,014,000
355,68,0165,016,500
406,48,8178,018,200
508,011,0229,038,000

DIN 28011 管端盖尺寸

DIN 28011 瓶盖尺寸

ISO - 尺寸

尺寸 D1 x S高度 L重量/公斤
21,3 x 2,09,00,01
26,9 x 2,09,00,01
33,7 x 2,013,00,02
42,4 x 2,013,00,04
48,3 x 2,013,50,05
60,3 x 2,018,50,07
76,1 x 2,020,50,10
88,9 x 2,025,00,15
114,3 x 2,028,00,26
114,3 x 3,029,00,39
139,7 x 3,038,50,60
168,3 x 3,047,50,90
219,1 x 3,063,51,32
273,0 x 3,093,01,95
323,9 x 3,0102,02,70
355,6 x 3,0109,03,80
406,4 x 3,0123,05,00
457,2 x 3,0123,06,10
508,0 x 3,0133,07,60

指标维度

尺寸 D1 x S高度 L重量/公斤
20,0 x 2,09,00,02
25,0 x 2,09,00,03
30,0 x 2,013,50,03
35,0 x 2,013,50,04
44,0 x 2,015,00,04
54,0 x 2,015,00,05
70,0 x 2,019,50,07
84,0 x 2,024,00,15
104,0 x 2,028,00,20
129,0 x 2,037,00,36
154,0 x 2,043,00,50
156,0 x 3,044,00,94
204,0 x 2,062,00,80
206,0 x 3,063,01,20
254,0 x 2,072,01,30
256,0 x 3,073,01,95
306,0 x 3,083,02,50

盖几何形状

外径大尺寸壁厚符合“E”
DNNPS的E1
151/225253.73
203/425253.91
25138384.55
321 1/438384.85
401 1/238385.08
50238445.54
652 1/238517.01
80351647.62
903 1/264768.08
100464768.56
125576899.53
15068910210.97
200810212712.7
2501012715212.7
3001215217812.7
3501416519112.7
4001617820312.7
4501820322912.7
5002022925412.7
5502225425412.7
6002426730512.7
65026267

70028267

75030267

80032267

85034267

90036267

95038305

100040305

105042305

110044343

115046343

120048343


盖管件的理论重量

D(英寸)DNSCH5 的SCH10 的SCH10SCH20SCH30SCH40 年代性病SCH40
1/8"610.3-1.24


1.731.731.73
1/4"813.7-1.65---2.242.242.24
3/8"1017.1-1.65---2.312.312.31
1/2"1521.31.652.11---2.772.772.77
3/4"2026.71.652.11---2.872.872.87
1"2533.41.652.77---3.383.383.38
11/4"3242.21.652.77---3.563.563.56
11/2"4048.31.652.77---3.683.683.68
2"5060.31.652.77---3.913.913.91
21/2"65732.113.05---5.165.165.16
3"8088.92.113.05---5.495.495.49
31/2"90101.62.113.05---5.745.745.74
4"100114.32.113.05---6.026.026.02
5"125141.32.773.4---6.556.556.55
6"150168.32.773.4---7.117.117.11
8"200219.12.773.76-6.357.048.188.188.18
10"250273.13.44.19-6.357.89.279.279.27
12"300323.93.964.57-6.358.839.539.5310.31
14"350355.63.964.786.357.929.53-9.5311.13
16"400406.44.194.786.357.929.53-9.5312.7
18"450457.24.194.786.357.9211.13-9.5314.27
20"5005084.785.546.359.5312.7-9.5315.09
22"550558.84.785.546.359.5312.7-9.53
24"600609.65.546.356.359.5314.27-9.5317.48
26"650660.4--7.9212.7--9.53-
28"700711.2--7.9212.715.88-9.53-
30"7507626.357.927.9212.715.88-9.53-
32"800812.8--7.9212.715.88-9.5317.48
34"850863.6--7.9212.715.88-9.5317.48
36"900914.4--7.9212.715.88-9.5319.05
38"950965.2------9.53-
40"10001016------9.53-
42"10501066.8------9.53-
44"11001117.6------9.53-
46"11501168.4------9.53-
48"12001219.2------9.53-


交货

对配件进行目视检查,以检查任何表面缺陷。检查管件主体和焊缝是否有任何可见的表面缺陷,例如凹痕、模痕、孔隙、底切等。根据适用标准进行验收。从仓库到您身边,我们既要速度更要靠谱!全程追踪物流、品质护货不马虎,每一次交付都较真 “说到做到”,让客户更快 更满意的拿到心仪货品

包装

对于带喷漆的碳钢法兰的包装,我们会使用气泡膜来保护喷漆。对于未喷漆或长期运输上油的法兰,我们建议客户使用防锈纸和塑料袋以防止生锈。后期我们会根据客户的要求和实际情况 细致包装 保证客户收到完整的产品

ASTM A213 T91 Alloy Tube

The ASTM A213 T91 seamless tubes are primarily used for boiler, superheater, and

Tubes Erosion Shields

Tubes Erosion Shields are used to protect boiler tubing from the highly erosive

Rare Earth Alloy Wear-Resistant Pipe

The material of the rare earth alloy wear-resistant pipe is ZG40CrMnMoNiSiRe, wh

Ceramic Tile Lined Pipes

Ceramic tile lined pipes have very uniform coating of specially formulated ceram

Cast Basalt Lined Steel Pipe

Cast basalt lined steel pipe is composed by lined with cast basalt pipe, outside

Ceramic Lined Pipe

Ceramic lined pipe is made through self-propagating high-temperature synthesis (

QQ在线咨询 微信
微信订阅号
阿里旺旺 mail

您应享的尊贵服务体验

我们的响应式服务确保时效,专业团队精准把握您的需求,以白手套级服务标准为您快速配齐所需材料。

世界级客户服务随时提供帮助应用

世界级客户服务随时提供帮助应用

符合工程规格确保顶级品质应用

符合工程规格确保顶级品质应用

生产或制造过程无延误应用

生产或制造过程无延误应用

准时交付且价格公道的材料应用

准时交付且价格公道的材料应用