*对于 WPL6 级,铌的限值在热分析中可增加至 0.05%,在产品分析中可增加至 0.06%。 *由板材或锻件制成的 WPL3 管件可能含有 0.90% 的最大锰。 *由板制成的 WPL8 配件可能含有 0.98% 的最大锰。 *所有伸长率值均基于标准圆形试样或小比例试样,在 4 D 中最小 %。 ASTM A234 是钢管件的标准规范,包括用于中温和高温服务的碳钢和合金钢材料。 除了上述定义的弯头外,还有几种类型的弯头不经常使用。下面定义了其中的几个。 异径弯头是一种用于连接两根不同尺寸的管道的配件。异径弯头之所以如此称呼,是因为它看起来像一个异径件和弯头合二为一。异径弯头省去了一个管件(异径管),减少了三分之一以上的焊接。此外,在异径弯头的整个弧度上逐渐减小直径,提供了较低的流动阻力,并减少了水流湍流和潜在内部侵蚀的影响。这些功能可防止管路中出现相当大的压降。 对于许多供应商来说,它是一种非标准产品,导致价格高昂,交货时间长。如果情况允许,可以选择使用带有单独减速器的“普通”弯头。 外螺纹管弯头和内螺纹管弯头是流行的管接头,可提供油管运行的流体流动方向变化。外管弯头用于将分数管连接到内锥管螺纹,而内弯头用于将分数管连接到 NPT 外螺纹。这些类型的管接头(如外弯头和内弯头)专门设计用于化工、石油、流体动力、电子以及纸浆和造纸厂使用的仪表、过程和控制系统以及设备。 肘部最薄弱的点是内半径。ASME B16.9 仅标准化了中心到面尺寸和一些“垂直度”尺寸公差。熔接线位置的壁厚甚至是标准化的,但不是通过弯头的其余部分。该标准规定,最小公差将在管道最小订购壁厚的 12.5% 以内。仅在管接头的端部指定最大公差。许多对焊弯头供应商提供一个更大的厚度,以便在成型后保留足够的壁厚。 ASME B16.9 标准涵盖了尺寸为 NPS 1⁄2 至 NPS 48(DN 15 至 DN 1200)的工厂制造的锻造对焊管件的外形尺寸、公差、额定值、测试和标记。 所有尺寸均以英寸为单位。除非另有说明,否则公差相等于正负。 ASME B16.9 管件可在 ASME 锅炉和压力容器规范 (BPVC) 以及 ASME 压力管道规范的管辖范围内使用。参考符合 ASME B16.5 的法兰压力等级,它们可以指定为 150、300、600、900、1500 和 2500 级。ASME B16.9 管件的允许压力等级可以根据 ASME B31 压力管道规范适用部分中规定的规则计算为等效材料的直无缝管。 根据 ASME B16.9 制造的对焊管件的设计应通过以下方法之一确定:(a) 压力容器或管道规范中包含的数学分析;(b) 验证测试;(c)通过水压试验进行实验应力分析,以验证实验结果;(d) 详细的应力分析及结果评估。 一般ASME B16.9管件应标明以下详细信息:“商标+材料等级+壁厚+尺寸+热号”。例如,“M ASTM A234 WP5 SCH80 6” 385“。使用钢印章时,应 ASME B16.9 管件可由多种材料制成,涵盖 (1) 符合 ASTM A234 和 ASTM A420 的碳钢和低合金钢;(2)符合ASTM A403和ASTM A815的奥氏体和双相不锈钢;(3)符合ASTM B366的镍合金;(4)符合ASTM B361的铝合金;(5) 符合 ASTM B363 的钛合金。 尺寸 1/2“ – 48”ASTM A420 的化学成分 (%)
元素 WPL6,% WPL9,% WPL3,% WPL8,% 碳 [C] ≤0.30 ≤0.20 ≤0.20 ≤0.13 锰 [Mn] 0.50-1.35 0.40-1.06 0.31-0.64 ≤0.90 磷 [P] ≤0.035 ≤0.030 ≤0.05 ≤0.030 硫 [S] ≤0.040 ≤0.030 ≤0.05 ≤0.030 硅 [Si] 0.15-0.40 … 0.13-0.37 0.13-0.37 镍 [Ni] ≤0.40 1.60-2.24 3.2-3.8 8.4-9.6 铬 [Cr] ≤0.30 ... ... ... 钼 [Mo] ≤0.12 ... ... ... 铜 [Cu] ≤0.40 0.75-1.25 … … 铯 [Cb] ≤0.02 ... ... ... 钒[V] ≤0.08 ... ... ... 笔记:
ASTM A420 的机械性能
ASTM A420/ A420M 抗拉强度,最小值 屈服强度,最小值 伸长率 %,最小 年级 KSI MPa的 KSI MPa的 纵的 横向 WPL6型 65-95 415-655 35 240 22 12 WPL9 63-88 435-610 46 315 20 … WPL3型 65-90 450-620 35 240 22 14 WPL8 系列 100-125 690-865 75 515 16 … 
其他一些类型的弯头
异径弯头
外螺纹管弯头和内螺纹管弯头
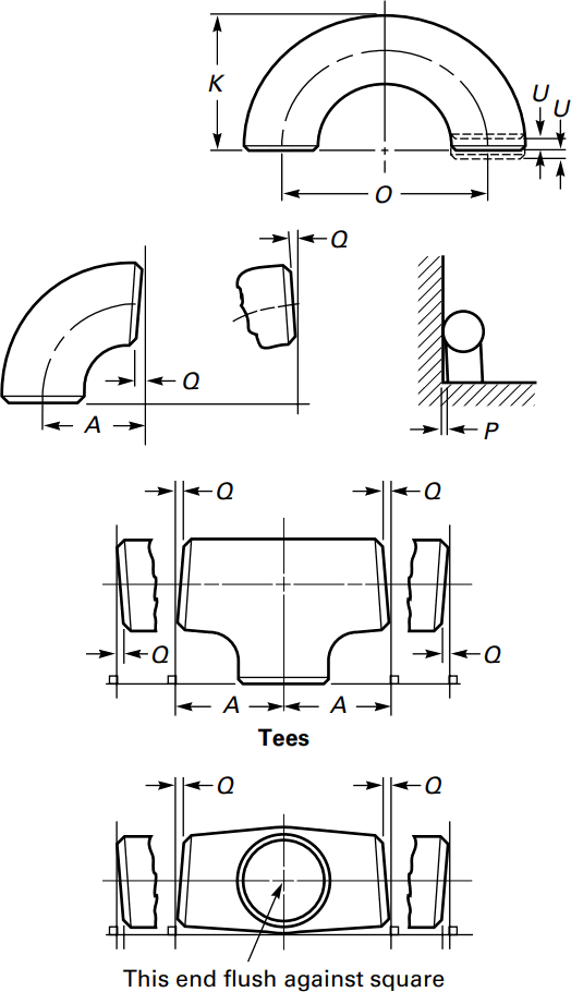
弯头壁厚
ASME / ANSI B16.9 尺寸
名义 外径 90°弯头 45°弯头 180° 回归 管道尺寸 长半径 短半径 长半径 长半径 (英寸) (毫米) (英寸) 从中心到面 从中心到面 从中心到面 半径 中心到中心 回到脸 (英寸) (英寸) (英寸) (英寸) (英寸) (英寸) 1/2 21.3 0.84 1.5 – 5/8 2 1.875 3/4 26.7 1.05 1.125 – 7/16 2.25 1.6875 1 33.4 1.315 1.5 1 7/8 3 2.1875 1.25 42.2 1.66 1.875 1.25 1 3.75 2.75 1.5 48.3 1.9 2.25 1.5 1.125 3 4.5 3.25 2 60.3 2.375 3 2 1.375 4 6 4.1875 2.5 73 2.875 3.75 2.5 1.75 5 7.5 5.1875 3 88.9 3.5 4.5 3 2 6 9 6.25 3.5 101.6 4 5.25 3.5 2.25 7 10.5 7.25 4 114.3 4.5 6 4 2.5 8 12 8.25 5 141.3 5.563 7.5 5 3.125 10 15 10.3125 6 168.3 6.625 9 6 3.75 12 18 12.3125 8 219.1 8.625 12 8 5 12 24 16.3125 10 273.1 10.75 15 10 6.25 15 30 20.375 12 323.9 12.75 18 12 7.5 18 36 24.375 Tolerances of Welded Fittings
NOMINAL PIPE SIZE NPS ANGULARITY TOLERANCES ANGULARITY TOLERANCES Size Off Angle Q Off Plane P ½ to 4 0.03 0.06 5 to 8 0.06 0.12 10 至 12 0.09 0.19 14 至 16 0.09 0.25 18 至 24 岁 0.12 0.38 26 至 30 0.19 0.38 32 至 42 0.19 0.5 44 至 48 0.18 0.75 配件设计
标准标记
注意标记不够深或不够锋利,以免造成裂纹或将管件的壁厚减少到允许的最小值以下。材料与制造
管件尺寸公差符合 ASME B16.9:

对配件进行目视检查,以检查任何表面缺陷。检查管件主体和焊缝是否有任何可见的表面缺陷,例如凹痕、模痕、孔隙、底切等。根据适用标准进行验收。从仓库到您身边,我们既要速度更要靠谱!全程追踪物流、品质护货不马虎,每一次交付都较真 “说到做到”,让客户更快 更满意的拿到心仪货品
对于带喷漆的碳钢法兰的包装,我们会使用气泡膜来保护喷漆。对于未喷漆或长期运输上油的法兰,我们建议客户使用防锈纸和塑料袋以防止生锈。后期我们会根据客户的要求和实际情况 细致包装 保证客户收到完整的产品
我们的响应式服务确保时效,专业团队精准把握您的需求,以白手套级服务标准为您快速配齐所需材料。