不锈钢弯头由不锈钢材料生产,参考标准为:ASTM A403 WP 304/304L、316/316L ASTM A270。 专为耐用性和耐腐蚀性而设计,使其成为各种工业应用的理想选择。这些弯头有多种尺寸和形状,以适应不同的管道系统。不锈钢弯头(Stainless Steel Elbow) 是管道系统中用于改变流体流向的管件,核心特征是采用不锈钢材质制造,兼具弯头的 “转向功能” 与不锈钢的 “耐腐蚀性、高强度、耐高温” 等特性。它能在复杂工况(如酸碱环境、高温高压、洁净要求高的场景)中稳定工作,广泛应用于化工、食品、医药、石油、电力等对材质性能要求严苛的行业,是工业与民用领域中高可靠性管道转向的核心部件
下载 PDF 进入淘宝
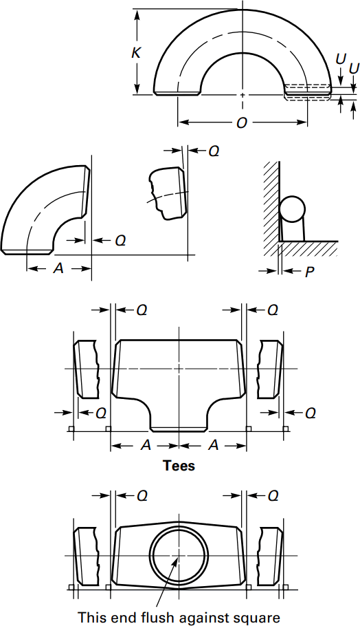
除了上述定义的弯头外,还有几种类型的弯头不经常使用。下面定义了其中的几个。
异径弯头是一种用于连接两根不同尺寸的管道的配件。异径弯头之所以如此称呼,是因为它看起来像一个异径件和弯头合二为一。异径弯头省去了一个管件(异径管),减少了三分之一以上的焊接。此外,在异径弯头的整个弧度上逐渐减小直径,提供了较低的流动阻力,并减少了水流湍流和潜在内部侵蚀的影响。这些功能可防止管路中出现相当大的压降。
对于许多供应商来说,它是一种非标准产品,导致价格高昂,交货时间长。如果情况允许,可以选择使用带有单独减速器的“普通”弯头。
外螺纹管弯头和内螺纹管弯头是流行的管接头,可提供油管运行的流体流动方向变化。外管弯头用于将分数管连接到内锥管螺纹,而内弯头用于将分数管连接到 NPT 外螺纹。这些类型的管接头(如外弯头和内弯头)专门设计用于化工、石油、流体动力、电子以及纸浆和造纸厂使用的仪表、过程和控制系统以及设备。
肘部最薄弱的点是内半径。ASME B16.9 仅标准化了中心到面尺寸和一些“垂直度”尺寸公差。熔接线位置的壁厚甚至是标准化的,但不是通过弯头的其余部分。该标准规定,最小公差将在管道最小订购壁厚的 12.5% 以内。仅在管接头的端部指定最大公差。许多对焊弯头供应商提供一个更大的厚度,以便在成型后保留足够的壁厚。
ASME B16.9 标准涵盖了尺寸为 NPS 1⁄2 至 NPS 48(DN 15 至 DN 1200)的工厂制造的锻造对焊管件的外形尺寸、公差、额定值、测试和标记。
| 名义 | 外径 | 90°弯头 | 45°弯头 | 180° 回归 | ||||
|---|---|---|---|---|---|---|---|---|
| 管道尺寸 | 长半径 | 短半径 | 长半径 | 长半径 | ||||
| (英寸) | (毫米) | (英寸) | 从中心到面 | 从中心到面 | 从中心到面 | 半径 | 中心到中心 | 回到脸 |
| (英寸) | (英寸) | (英寸) | (英寸) | (英寸) | (英寸) | |||
| 1/2 | 21.3 | 0.84 | 1.5 | – | 5/8 | 2 | 1.875 | |
| 3/4 | 26.7 | 1.05 | 1.125 | – | 7/16 | 2.25 | 1.6875 | |
| 1 | 33.4 | 1.315 | 1.5 | 1 | 7/8 | 3 | 2.1875 | |
| 1.25 | 42.2 | 1.66 | 1.875 | 1.25 | 1 | 3.75 | 2.75 | |
| 1.5 | 48.3 | 1.9 | 2.25 | 1.5 | 1.125 | 3 | 4.5 | 3.25 |
| 2 | 60.3 | 2.375 | 3 | 2 | 1.375 | 4 | 6 | 4.1875 |
| 2.5 | 73 | 2.875 | 3.75 | 2.5 | 1.75 | 5 | 7.5 | 5.1875 |
| 3 | 88.9 | 3.5 | 4.5 | 3 | 2 | 6 | 9 | 6.25 |
| 3.5 | 101.6 | 4 | 5.25 | 3.5 | 2.25 | 7 | 10.5 | 7.25 |
| 4 | 114.3 | 4.5 | 6 | 4 | 2.5 | 8 | 12 | 8.25 |
| 5 | 141.3 | 5.563 | 7.5 | 5 | 3.125 | 10 | 15 | 10.3125 |
| 6 | 168.3 | 6.625 | 9 | 6 | 3.75 | 12 | 18 | 12.3125 |
| 8 | 219.1 | 8.625 | 12 | 8 | 5 | 12 | 24 | 16.3125 |
| 10 | 273.1 | 10.75 | 15 | 10 | 6.25 | 15 | 30 | 20.375 |
| 12 | 323.9 | 12.75 | 18 | 12 | 7.5 | 18 | 36 | 24.375 |
| 标称管道尺寸 NPS | 角度公差 | 角度公差 |
|---|---|---|
| 大小 | 偏角 Q | 平面外 P |
| 1/2 至 4 | 0.03 | 0.06 |
| 5 至 8 | 0.06 | 0.12 |
| 10 至 12 | 0.09 | 0.19 |
| 14 至 16 | 0.09 | 0.25 |
| 18 至 24 岁 | 0.12 | 0.38 |
| 26 至 30 | 0.19 | 0.38 |
| 32 至 42 | 0.19 | 0.5 |
| 44 至 48 | 0.18 | 0.75 |
所有尺寸均以英寸为单位。除非另有说明,否则公差相等于正负。
ASME B16.9 管件可在 ASME 锅炉和压力容器规范 (BPVC) 以及 ASME 压力管道规范的管辖范围内使用。参考符合 ASME B16.5 的法兰压力等级,它们可以指定为 150、300、600、900、1500 和 2500 级。ASME B16.9 管件的允许压力等级可以根据 ASME B31 压力管道规范适用部分中规定的规则计算为等效材料的直无缝管。
根据 ASME B16.9 制造的对焊管件的设计应通过以下方法之一确定:(a) 压力容器或管道规范中包含的数学分析;(b) 验证测试;(c)通过水压试验进行实验应力分析,以验证实验结果;(d) 详细的应力分析及结果评估。
一般ASME B16.9管件应标明以下详细信息:“商标+材料等级+壁厚+尺寸+热号”。例如,“M ASTM A234 WP5 SCH80 6” 385“。使用钢印章时,应
注意标记不够深或不够锋利,以免造成裂纹或将管件的壁厚减少到允许的最小值以下。
ASME B16.9 管件可由多种材料制成,涵盖 (1) 符合 ASTM A234 和 ASTM A420 的碳钢和低合金钢;(2)符合ASTM A403和ASTM A815的奥氏体和双相不锈钢;(3)符合ASTM B366的镍合金;(4)符合ASTM B361的铝合金;(5) 符合 ASTM B363 的钛合金。

尺寸 1/2“ – 48”
对配件进行目视检查,以检查任何表面缺陷。检查管件主体和焊缝是否有任何可见的表面缺陷,例如凹痕、模痕、孔隙、底切等。根据适用标准进行验收。从仓库到您身边,我们既要速度更要靠谱!全程追踪物流、品质护货不马虎,每一次交付都较真 “说到做到”,让客户更快 更满意的拿到心仪货品
对于带喷漆的碳钢法兰的包装,我们会使用气泡膜来保护喷漆。对于未喷漆或长期运输上油的法兰,我们建议客户使用防锈纸和塑料袋以防止生锈。后期我们会根据客户的要求和实际情况 细致包装 保证客户收到完整的产品
我们的响应式服务确保时效,专业团队精准把握您的需求,以白手套级服务标准为您快速配齐所需材料。